HOME > ÀÓ´ëÁ¤º¸ > Ãþº° Æò¸éµµ |
|
| Ãþº° Æò¸éµµ |
|
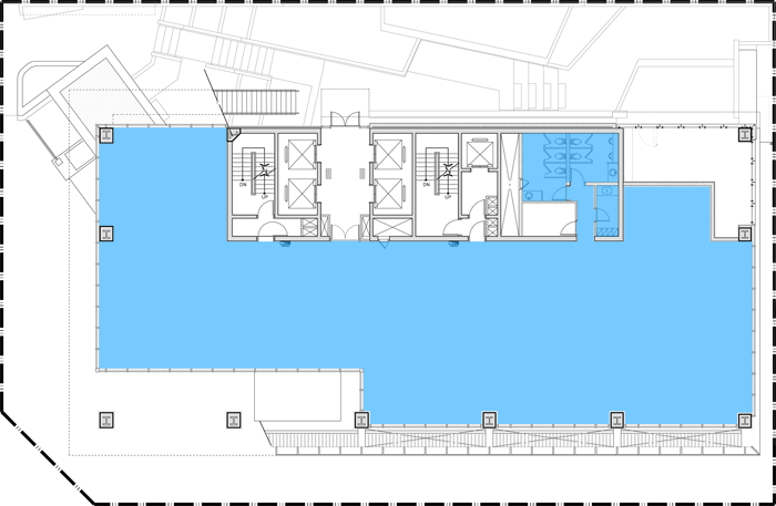
1F 1, 2, 3, B1F : ¸®Å×ÀÏ ÀÓ´ë 18~4F : ¾÷¹«¿ë ÀÓ´ë |
|
|
FLOOR PLAN |
|
 |
|
- ÀÓ´ë¸éÀû : 101È£ : 190.57m2 / 57.65Æò
102È£ : 262.07m2 / 79.28Æò
103È£ : 377.15m2 / 114.09Æò
- ¿ëµµ : ±Ù¸°»ýȰ
- Ư¡ : ·Îºñ, Á¤¹®, 4MÀÇ ³ôÀº õÀå°í, ÈÀå½Ç (³²,¿©), Àå¾ÖÀÎÈÀå½Ç(³²,¿©)
|
|
| »ç¹«½Ç ¹× ¸®Å×ÀÏ ¹®ÀÇ |
|
ÀÓ´ë´ã´ç / ÀÌ»óÇÐ
ÀüȹøÈ£: 02-564-1107
ÀüÀÚ¿ìÆí: tim@taebo-i.com
|
|
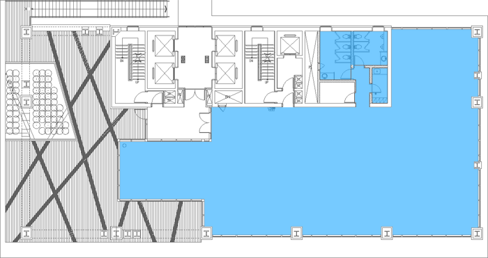
2F 1, 2, 3, B1F : ¸®Å×ÀÏ ÀÓ´ë 18~4F : ¾÷¹«¿ë ÀÓ´ë |
|
|
FLOOR PLAN |
|
 |
|
- ÀÓ´ë¸éÀû : 960.38m2 / 290.51Æò
- ¿ëµµ : ¿ÀÇǽº / ±Ù¸°»ýȰ
- Ư¡ : ³²ÂÊ Á¤¹®, 4MÀÇ ³ôÀº õÀå°í
|
|
| »ç¹«½Ç ¹× ¸®Å×ÀÏ ¹®ÀÇ |
|
ÀÓ´ë´ã´ç / ÀÌ»óÇÐ
ÀüȹøÈ£: 02-564-1107
ÀüÀÚ¿ìÆí: tim@taebo-i.com
|
|
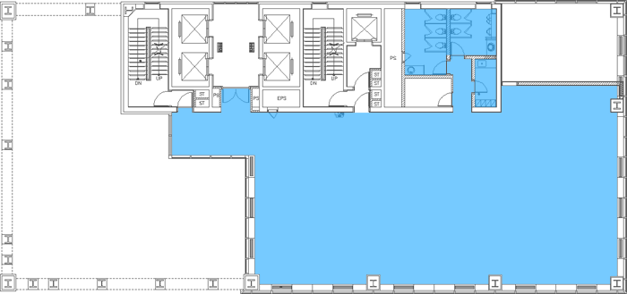
3F 1, 2, 3, B1F : ¸®Å×ÀÏ ÀÓ´ë 18~4F : ¾÷¹«¿ë ÀÓ´ë |
|
|
FLOOR PLAN |
|
 |
|
- ÀÓ´ë¸éÀû : 816.44m2 / 246.97Æò
- ¿ëµµ : ¿ÀÇǽº / ±Ù¸°»ýȰ
- Ư¡ : 3ÃþÁøÀÔ °è´Ü, ´ë³ª¹« Á¤¿ø, ÁßÁ¤, ±Û·¡½º·ë
|
|
| »ç¹«½Ç ¹× ¸®Å×ÀÏ ¹®ÀÇ |
|
ÀÓ´ë´ã´ç / ÀÌ»óÇÐ
ÀüȹøÈ£: 02-564-1107
ÀüÀÚ¿ìÆí: tim@taebo-i.com
|
|
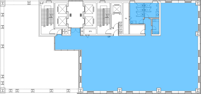
4F 1, 2, 3, B1F : ¸®Å×ÀÏ ÀÓ´ë 18~4F : ¾÷¹«¿ë ÀÓ´ë |
|
|
FLOOR PLAN |
|
 |
|
- ÀÓ´ë¸éÀû : 742.02m2 / 224.46Æò
- ¿ëµµ : ¿ÀÇǽº
- Ư¡ : Ùí±âµÕ¼³°è, ¹ßÄÚ´Ï
|
|
| »ç¹«½Ç ¹× ¸®Å×ÀÏ ¹®ÀÇ |
|
ÀÓ´ë´ã´ç / ÀÌ»óÇÐ
ÀüȹøÈ£: 02-564-1107
ÀüÀÚ¿ìÆí: tim@taebo-i.com
|
|
5F 1, 2, 3, B1F : ¸®Å×ÀÏ ÀÓ´ë 18~4F : ¾÷¹«¿ë ÀÓ´ë |
|
|
FLOOR PLAN |
|
 |
|
- ÀÓ´ë¸éÀû : 712.59m2 / 215.56Æò
- ¿ëµµ : ¿ÀÇǽº
- Ư¡ : Ùí±âµÕ¼³°è
|
|
| »ç¹«½Ç ¹× ¸®Å×ÀÏ ¹®ÀÇ |
|
ÀÓ´ë´ã´ç / ÀÌ»óÇÐ
ÀüȹøÈ£: 02-564-1107
ÀüÀÚ¿ìÆí: tim@taebo-i.com
|
|
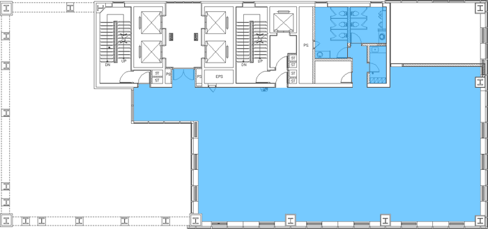
6F 1, 2, 3, B1F : ¸®Å×ÀÏ ÀÓ´ë 18~4F : ¾÷¹«¿ë ÀÓ´ë |
|
|
FLOOR PLAN |
|
 |
|
- ÀÓ´ë¸éÀû : 777.81m2 / 235.29Æò
- ¿ëµµ : ¿ÀÇǽº
- Ư¡ : Ùí±âµÕ¼³°è
|
|
| »ç¹«½Ç ¹× ¸®Å×ÀÏ ¹®ÀÇ |
|
ÀÓ´ë´ã´ç / ÀÌ»óÇÐ
ÀüȹøÈ£: 02-564-1107
ÀüÀÚ¿ìÆí: tim@taebo-i.com
|
|
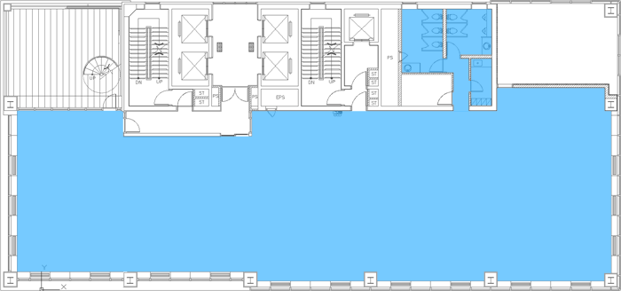
7F 1, 2, 3, B1F : ¸®Å×ÀÏ ÀÓ´ë 18~4F : ¾÷¹«¿ë ÀÓ´ë |
|
|
FLOOR PLAN |
|
 |
|
- ÀÓ´ë¸éÀû : 773.08m2 / 233.86Æò
- ¿ëµµ : ¿ÀÇǽº
- Ư¡ : Ùí±âµÕ¼³°è
|
|
| »ç¹«½Ç ¹× ¸®Å×ÀÏ ¹®ÀÇ |
|
ÀÓ´ë´ã´ç / ÀÌ»óÇÐ
ÀüȹøÈ£: 02-564-1107
ÀüÀÚ¿ìÆí: tim@taebo-i.com
|
|
8F 1, 2, 3, B1F : ¸®Å×ÀÏ ÀÓ´ë 18~4F : ¾÷¹«¿ë ÀÓ´ë |
|
|
FLOOR PLAN |
|
 |
|
- ÀÓ´ë¸éÀû : 712.46m2 / 215.52Æò
- ¿ëµµ : ¿ÀÇǽº
- Ư¡ : Ùí±âµÕ¼³°è
|
|
| »ç¹«½Ç ¹× ¸®Å×ÀÏ ¹®ÀÇ |
|
ÀÓ´ë´ã´ç / ÀÌ»óÇÐ
ÀüȹøÈ£: 02-564-1107
ÀüÀÚ¿ìÆí: tim@taebo-i.com
|
|
9F,11F,13F,15F,17F 1, 2, 3, B1F : ¸®Å×ÀÏ ÀÓ´ë 18~4F : ¾÷¹«¿ë ÀÓ´ë |
|
|
FLOOR PLAN |
|
 |
|
- ÀÓ´ë¸éÀû : 1,135.92m2 / 343.62Æò
- ¿ëµµ : ¿ÀÇǽº
- Ư¡ : Ùí±âµÕ¼³°è
|
|
| »ç¹«½Ç ¹× ¸®Å×ÀÏ ¹®ÀÇ |
|
ÀÓ´ë´ã´ç / ÀÌ»óÇÐ
ÀüȹøÈ£: 02-564-1107
ÀüÀÚ¿ìÆí: tim@taebo-i.com
|
|
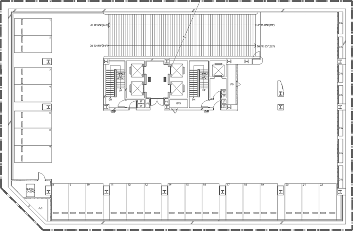
10F,12F,14F,16F 1, 2, 3, B1F : ¸®Å×ÀÏ ÀÓ´ë 18~4F : ¾÷¹«¿ë ÀÓ´ë |
|
|
FLOOR PLAN |
|
 |
|
- ÀÓ´ë¸éÀû : 1,067.71m2 / 322.98Æò
- ¿ëµµ : ¿ÀÇǽº
- Ư¡ : Ùí±âµÕ¼³°è, °øÁ¶½Ç
|
|
| »ç¹«½Ç ¹× ¸®Å×ÀÏ ¹®ÀÇ |
|
ÀÓ´ë´ã´ç / ÀÌ»óÇÐ
ÀüȹøÈ£: 02-564-1107
ÀüÀÚ¿ìÆí: tim@taebo-i.com
|
|
18F 1, 2, 3, B1F : ¸®Å×ÀÏ ÀÓ´ë 18~4F : ¾÷¹«¿ë ÀÓ´ë |
|
|
FLOOR PLAN |
|
 |
|
- ÀÓ´ë¸éÀû : 961.29m2 / 290.79Æò
- ¿ëµµ : ¿ÀÇǽº
- Ư¡ : Ùí±âµÕ¼³°è, Å×¶ó½º
|
|
| »ç¹«½Ç ¹× ¸®Å×ÀÏ ¹®ÀÇ |
|
ÀÓ´ë´ã´ç / ÀÌ»óÇÐ
ÀüȹøÈ£: 02-564-1107
ÀüÀÚ¿ìÆí: tim@taebo-i.com
|
|
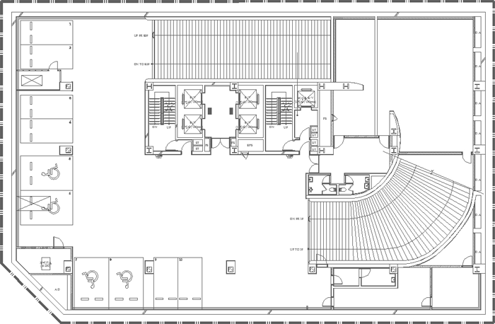
B1F 1, 2, 3, B1F : ¸®Å×ÀÏ ÀÓ´ë 18~4F : ¾÷¹«¿ë ÀÓ´ë |
|
|
FLOOR PLAN |
|
 |
|
- ÀÓ´ë¸éÀû : 1,390.23m2 / 420.54Æò
- ¿ëµµ : ¿ÀÇǽº, ±Ù¸°»ýȰ
- Ư¡ : SUNKEN °è´Ü, µ¶¸³µÈ °ø°£
|
|
| »ç¹«½Ç ¹× ¸®Å×ÀÏ ¹®ÀÇ |
|
ÀÓ´ë´ã´ç / ÀÌ»óÇÐ
ÀüȹøÈ£: 02-564-1107
ÀüÀÚ¿ìÆí: tim@taebo-i.com
|
|
B2F 1, 2, 3, B1F : ¸®Å×ÀÏ ÀÓ´ë 18~4F : ¾÷¹«¿ë ÀÓ´ë |
|
|
FLOOR PLAN |
|
 |
|
|
|
|
| »ç¹«½Ç ¹× ¸®Å×ÀÏ ¹®ÀÇ |
|
ÀÓ´ë´ã´ç / ÀÌ»óÇÐ
ÀüȹøÈ£: 02-564-1107
ÀüÀÚ¿ìÆí: tim@taebo-i.com
|
|
B3F,B4F,B5F 1, 2, 3, B1F : ¸®Å×ÀÏ ÀÓ´ë 18~4F : ¾÷¹«¿ë ÀÓ´ë |
|
|
FLOOR PLAN |
|
 |
|
|
|
|
| »ç¹«½Ç ¹× ¸®Å×ÀÏ ¹®ÀÇ |
|
ÀÓ´ë´ã´ç / ÀÌ»óÇÐ
ÀüȹøÈ£: 02-564-1107
ÀüÀÚ¿ìÆí: tim@taebo-i.com
|
|
|
|
|